Location Bureaux76 BOULEVARD DE LA REPUBLIQUE92100 BOULOGNE-BILLANCOURT
Désignation
A 200 mètres du métro Marcel Sembat, dans un immeuble d'angle de bon standing, nous vous proposons des surfaces de bureaux.
Surfaces
Type | Etage | Surface | Loyer | Charges | Disponibilité |
---|---|---|---|---|---|
Bureaux | 2 | 258 m² | 310 € | 78 € | Immédiate |
Bureaux | 5 | 258 m² | 310 € | 78 € | Immédiate |
Prestations
- Locaux lumineux en bon état
- Double exposition avec vus dégagées
- Configuration mixte : open et cloisonnés
- Contrôle d'accès par badge
- Hall d'accueil de bon standing
- Duplex d'ascenseurs desservant directement Climatisation
- Câblage informatique
- Cuisine
- DPE : en cours
Conditions juridiques et financières
Bail : 3/6/9 ans
Régime Fiscal : TVA
Taxe bureaux : 25.77 €/m²/an
Impôt foncier : 28 €/m²/an
Dépôt de garantie : 3 mois de loyer TTC HC
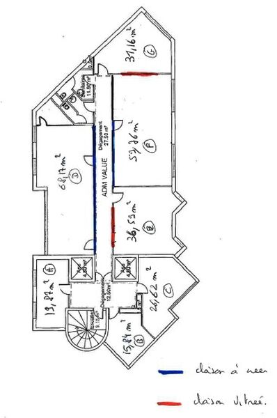
516 m²divisibles à partir de 258 m²
Loyer bureaux (Hors Taxes, Hors Charges)
300 € / m²/an
Accès
76 BOULEVARD DE LA REPUBLIQUE 92100 BOULOGNE-BILLANCOURT
Diagnostic de Performance Énergétique
CONSOMMATION En cours de détermination
GES En cours de détermination
