Location Bureaux31-37 RUE CENSIER75005 PARIS

Désignation

A proximité du métro 'Censier Daubenton', dans un immeuble moderne, nous vous proposons une surface de bureaux.


Surfaces

Type Etage Surface Loyer Charges Disponibilité
Bureaux 2 168 m² 760 € 40 € Immédiate
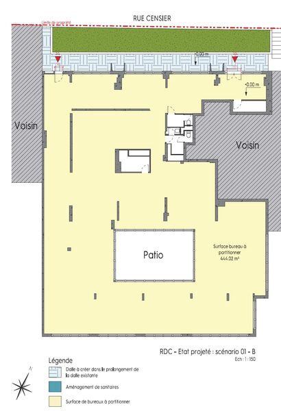
Bureaux Rdc 484 m² NC NC Après travaux

Prestations


    Conditions juridiques et financières

    Régime Fiscal : TVA

    0 m²non divisibles

    Loyer bureaux (Hors Taxes, Hors Charges)

    Nous consulter

    Charges
    En cours de détermination
    Disponibilité
    Immédiate

    Nous contacter

    Christophe LENOIR

    Accès

    31-37 RUE CENSIER 75005 PARIS

    MétroCampo-Formio - 650 m

    Diagnostic de Performance Énergétique

    CONSOMMATION En cours de détermination

    GES En cours de détermination

    Références

    Découvrez nos références

    Découvrir