Location Bureaux116 BOULEVARD HAUSSMANN75008 PARIS

Désignation

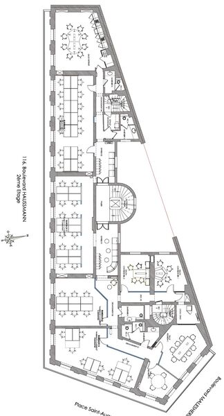
Place Saint Augustin, à proximité de la gare Saint Lazare, dans un très bel immeuble en pierre de taille ravalé en 2024, nous vous proposons une surface de bureaux.


Surfaces

Type Etage Surface Loyer Charges Disponibilité
Bureaux 2 375 m² 678 € 147 € Immédiate

Prestations

  • Locaux entièrement rénovés en 2024
  • Surface très lumineuse et très flexible
  • Possibilité plug and play (mobilier + aménagements)
  • Contrôle d'accès
  • Gardien
  • Ascenseur
  • Climatisation
  • Configuration :
  • Double entrée palière
  • Espace accueil
  • Open spaces
  • Bureaux fermés
  • Salle de réunion de 30 personnes
  • Petite salle de réunion
  • Cuisine équipée
  • BALCON filant avec belle VUE dégagée sur le boulevard Haussmann et la place Saint Augustin
  • DPE : en cours

Conditions juridiques et financières

Bail : Sous-location

Régime Fiscal : TVA

Indexation : ILAT

Dépôt de garantie : 3 mois de loyer HT/HC

Honoraires : A la charge du preneur

375 m²non divisibles

Loyer bureaux (Hors Taxes, Hors Charges)

672 € / m²/an

Charges
En cours de détermination
Disponibilité
Immédiate

Nous contacter

Christophe LENOIR

Accès

116 BOULEVARD HAUSSMANN 75008 PARIS

MétroMadeleine - 700 m

Diagnostic de Performance Énergétique

CONSOMMATION En cours de détermination

GES En cours de détermination

Références

Découvrez nos références

Découvrir