Location BureauxRUE DROUOT75009 PARIS

Désignation

A proximité immédiate de la salle Drouot, nous vous proposons une surface de bureaux / locaux commerciaux.


Surfaces

Type Etage Surface Loyer Charges Disponibilité
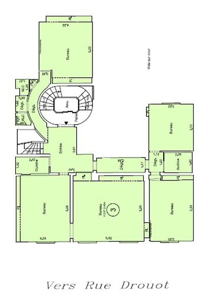
Bureaux 1 143 m² NC NC Mai 2026
Archives Sous-sol 122 m² NC NC Mai 2026
Locaux Commerciaux Rdc 58 m² NC NC Mai 2026

Prestations

  • Locaux livrés rénovés
  • Niveaux reliés par escalier intérieur
  • Double accès : indépendant sur rue et via les parties communes
  • Chauffage immeuble
  • Archives = caves voutées réunies
  • DPE : en cours

Conditions juridiques et financières

Bail : 3/6/9 ans

Régime Fiscal : TVA

Dépôt de garantie : 3 mois de loyer HT/HC

201 m²non divisibles

Loyer bureaux (Hors Taxes, Hors Charges)

130 000 € /an

Charges
En cours de détermination
Disponibilité
01/05/2026

Nous contacter

Pascale FRAISSE

Accès

RUE DROUOT 75009 PARIS

MétroNotre-Dame de Lorette - 351 m

Diagnostic de Performance Énergétique

CONSOMMATION En cours de détermination

GES En cours de détermination

Références

Découvrez nos références

Découvrir