Location Bureaux34 AVENUE DES TERNES75017 PARIS

Désignation

A proximité de la place de l'Etoile et à 50 m de la FNAC des Ternes et du marché Poncelet, nous vous proposons une surface de bureaux.


Surfaces

Type Etage Surface Loyer Charges Disponibilité
Bureaux 1 105 m² NC NC Février 2026

Prestations

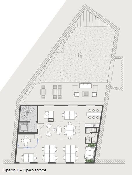
  • Surface donnant sur l'avenue et sur jardin de plain pied
  • Locaux livrés rénovés :
  • Décloisonnement total
  • Désamiantage
  • Pvc au sol
  • Pas de faux plafond
  • Remise en peinture
  • Remplacement des fenêtres des deux côtés
  • Enlèvement des grilles donnant sur le jardin
  • Locaux climatisés
  • Coin cuisine en attente fluides
  • Réfection des sanitaires
  • Remise en peinture du palier ascenseur
  • Revêtement sol de la terrasse mais espace vert en l'état
  • Accès sécurisé
  • Ascenseur
  • Climatisation réversible neuve
  • Configuration :
  • Open space
  • Espace cuisine
  • Possibilité de cloisonnement en 4 / 5 bureaux
  • Sanitaires
  • TERRASSE et JARDIN de plain pied (80 m² environ)
  • DPE : en cours

Conditions juridiques et financières

Bail : 3/6/9 ans

Régime Fiscal : TVA

Taxe bureaux : 25.77 €/m²/an

Indexation : ILAT

Dépôt de garantie : 3 mois de loyer HT/HC

Honoraires : A la charge du preneur

105 m²non divisibles

Loyer bureaux (Hors Taxes, Hors Charges)

75 000 € /an

Charges
En cours de détermination
Disponibilité
01/02/2026

Nous contacter

Christophe LENOIR

Accès

34 AVENUE DES TERNES 75017 PARIS

MétroPéreire - 650 m
RERCharles de Gaulle-Etoile - 550 m

Diagnostic de Performance Énergétique

CONSOMMATION En cours de détermination

GES En cours de détermination

Références

Découvrez nos références

Découvrir