Location Bureaux_75020 PARIS

Désignation

Locaux indépendants. GAPD : 6 mois


Surfaces

Type Etage Surface Loyer Charges Disponibilité
Bureaux 2 145 m² NC 1800 € Immédiate
Bureaux 1 95 m² NC 1800 € Immédiate
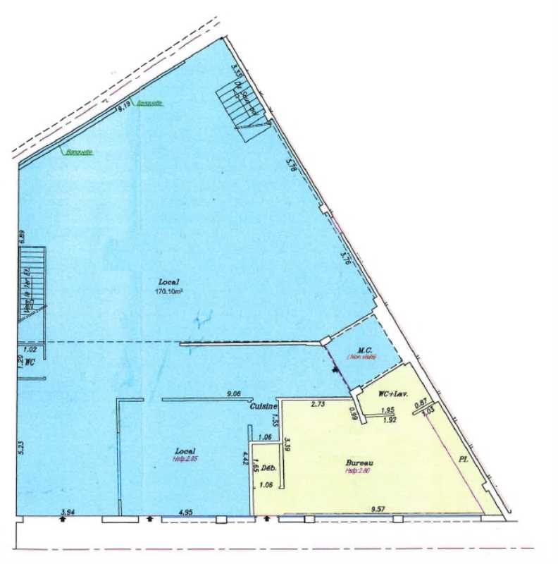
Activités Sous-sol 191 m² NC 1800 € Immédiate
Activités Rdc 170 m² NC 1800 € Immédiate

Prestations

  • 2 entrées : porte cochère et porte piétonne
  • Tous les niveaux sont desservis par monte-charge d'une largeur de 2,10 m profondeur 3m60 : charge 1 tonne 6
  • Chauffage gaz
  • Sous-sol : Activités, stockage de marchandise
  • Rdc : Activités + un grand Bureau
  • R+1 et R+2 : Bureaux
  • DPE : en cours

Conditions juridiques et financières

Bail : 3/6/9 ans

Régime Fiscal : TVA

Taxe bureaux : 1492 €/m²/an

Impôt foncier : 2 249 €/m²/an

Dépôt de garantie : 3 mois de loyer HT/HC

601 m²divisibles à partir de 145 m²

Loyer bureaux (Hors Taxes, Hors Charges)

160 000 € /an

Charges
En cours de détermination
Disponibilité
01/05/2025

Nous contacter

Michel MORGHAD

Accès

_ 75020 PARIS

MétroPlace des Fêtes - 351 m

Diagnostic de Performance Énergétique

CONSOMMATION En cours de détermination

GES En cours de détermination

Références

Découvrez nos références

Découvrir